SMC脉冲电磁阀的结构图及工作原理

发布时间:2016-09-24

SMC脉冲电磁阀的结构图及工作原理

SMC脉冲电磁阀用途:

一般安装在主油路或减振器背压油路中,在变速器自动升档及降档的瞬间或在锁止离合器锁止及解除锁止动作开始时使油压下降,以减少换档和锁止解锁冲击,使车辆运行更加平衡。其作用是控制油路中油压的大小
SMC脉冲电磁阀工作原理:
通过导线将电磁阀体内线圈输入正向脉冲信号,线圈产生的工作磁通,使动芯吸合,打开阀门。当停止正向脉冲信号输入时,动芯释放,动芯在弹簧力的作用下回复到初始状态,关闭阀门。
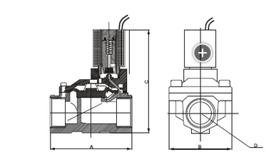
SMC脉冲电磁阀的结构:

该阀由励磁线圈及磁钢组成先导阀,主阀采用特种橡胶膜片结构。由于其设计,因此该阀具有低功耗、瞬时通电时间短、使用压力范围宽等优点,是实现自来水自动控制的理想执行元件。

SMC脉冲电磁阀的内部结构:

SMC脉冲电磁阀的特点:

由于SMC脉冲电磁阀具有低功耗、低电压等特点,可与智能卡式水表配套使用,是目前智能式水表系统水液自动控制必不可少的执行机构。

SYJ312-5LOZ-M3F 
SYJ312-5LZD-M3 
SYJ312-5LZD-M3F 
SYJ312-5LZ-M3 
SYJ312-5LZ-M3-F 
SYJ312-5LZ-M3FQ 
SYJ312-5MD-M3-F 
SYJ312-5M-M3 
SYJ312-5MZD-M3 
SYJ312-5MZE-M3 
SYJ312-5MZ-M3 
SYJ312-5MZ-M3-F 
SYJ312-6GD-M3 
SYJ312-6LZD-M3 
SYJ312-6LZ-M3 
SYJ312-6MOZ-M3 
SYJ312M-5LOUDM3 
SYJ312M-5LOUEM3 
SYJ312M-5LZD-M3 
SYJ312M-5MZD-M3 
SYJ312M-6G-M3 
SYJ312M-6LZD-M3 
SYJ312M-6LZ-M3 

SMC脉冲电磁阀的结构图及工作原理
SYJ312M-6M-M3 
SYJ312R-5GD-M3 
SYJ312R-5MD-M3F 
SYJ312R-5MZD-M3 
SMC()有限公司是SMC集团于1994年9月在北京经济技术开发区投资建立的独资子公司,为北京市首批高新技术企业。目前投资额已达5亿美元,在建有一个研发中心、四个加工及物流工厂,占地面积为52万平方米,员工接近5100人,生产用于工业自动化的气动元件。公司采用当今世界同行业精锐的自动化生产设备,引进了完整的现代化气动元件制造工艺。经过18年的高速发展,SMC()有限公司已成为世界上大的气动元件生产和出口基地,产品销售全球55个和地区。同时在主要工业城市建立了64个销售服务分支机
东莞市工搜电子有限公司主要经营:日本SMC气动元件,德国FESTO费斯托,德国宝德BURKERT,FESTO气缸,费斯托气缸,FESTO电磁阀,FESTO节流阀,FESTO比例阀,FESTO气爪,德国FESTO液压缓冲器,费斯托接头/FESTO气缸,德国FESTO过滤器,德国FESTO真空吸盘,德国FESTO减压阀,FESTO油雾器,可费斯托/FESTO传感器,费斯托真空发生器,费斯托压力开关,FESTO压力控制阀。
如果您觉得“德国FESTO紧凑型气缸”描述资料不够齐全,请联系我们获取详细资料。
购买须知
关于型号规格:由于产品的尺寸规格太多,我们人力资源有限,没有将全部的产品都上传。
如果需要购买其他型号请与客服联系,我们将由的工程师详细给您回复。 
关于产品尺寸及说明书:本系列产品的安装尺寸及使用说明书都齐全
关于运费:以上单价不含运费,每款产品的重量不样,运费问题请与客服联系,根据选购产品计算重量。
退换问题:所售产品全是原装,如无质量问题不退不换!希望您理解! 

联系人:林小姐
电话:
传真:
手机:
Q  Q:2779116507
地址:东莞市南城区莞太路12号中兴大厦510
网址:东莞宏升自动化设备有限公司http://dgsmd.testmart.cn/?channel=1
SMC三联件、SMC二联件、SMC调理组合,SMC气缸(圆型气压缸、双联缸、自由安装气压缸、双导杆气缸、摆动气缸、旋转气缸、滑台气缸、治具气缸、笔型气缸、方头型不旋转气、标准气缸、落下防止型气缸、阻挡缸等),SMC夹爪、平行夹爪、开关型夹爪。SMC电磁阀SY5120、SY7120等 ,SMC手动阀、脚踏阀);SMC压力感应开关,SMC压力表 ,SMC自动排水器,SMC流量控制阀,接头,消音器。
 公司主营温度压力仪表,泵阀流体控制,气动液压传动,气动元件等方面系列产品,满足了气动元件及过程控制的要求,产品涵盖了电力、石油、化工、钢铁、有色冶金、纺织、造纸、汽车、船舶、生物制药、污水处理等诸多行业,公司从产品的选型,安装,调试到售后服务,都深得用户的信赖,经验丰富的销售工程师及众多长期供货厂商是我们提供可靠和具有价值竞争产品的有效保证。
经营产品类别:
1.SMC产品系列:SMC气源处理元件、SMC方向控制阀、SMC执行元件、SMC空气组合元件、SMC真空元件、SMC管子及接头;
2.宝德BURKERT产品系列
3.费斯托FESTO产品系列
4.喜开理CKD产品系列
事业部经营理念:
充分了解客户需求,为客户提供全方位的液压气动解决方案与完善的售后服务。
我们用心-------让你放心!
SYJ312R-5MZ-M3 
SYJ312T-5MZE-M3 
SYJ3130-1MD 
SYJ3130-2GD 
SYJ3130-5G 
SYJ3130-5GS 
SYJ3130-5GSD 
SYJ3130-5GUE 
SYJ3130-5LNZ 
SYJ3130-5LOD 
SYJ3130-5LOZ 
SYJ3130-5LU 
SYJ3130-5LUD 
SYJ3130-5LZ 
SYJ3130-5LZD 
SYJ3130-5M 
SYJ3130-5MD 
SYJ3130-5MOZ 
SYJ3130-5MU 
SYJ3130-5MZ 
SYJ3130-5MZD 
SYJ3130-5WOZ 
SYJ3130-6LOZ 
SYJ3130-6LZD 
SYJ3130-6MZD 
SYJ3130-SGS 
SYJ3133-5GD 
SYJ3133-5HZ 
SYJ3133-5LD 
SYJ3133-5LOU 
SYJ3133-5LOUD 
SYJ3133-5LOZ 
SYJ3133-5LOZD 
SYJ3133-5LZ 
SYJ3133-5LZD 
SYJ3133-5M

SMC脉冲电磁阀的结构图及工作原理

上一篇:包头氙灯耐气候试验箱
下一篇:柱塞泵90R075DDAB60P...