电磁感应法检测混凝土结构实体钢筋位置及保护层厚度技术探讨

发布时间:2018-09-21

电磁感应法检测混凝土结构实体钢筋位置及保护层厚度技术探讨

吕会喜

(北京中地远大勘测科技有限公司 )

 

【摘要】钢筋保护层厚度直接影响到混凝土结构的承载能力和钢筋的握裹粘结力,保护层不同可能会导致结构强度、刚度和延性降低。因此,混凝土的钢筋保护层直接影响到混凝土结构的安全和耐久性。通过对本文的电磁感应法了解,我们可以进一步掌握利用电磁感应法检测钢筋位置及保护层厚度科学性和精度。

【关键词】保护层厚度,混凝土结构,电磁感应,钢筋位置

 

Electromagnetic induction assay reinforced concrete structure physical location and technology of the protective thickness

 

Abstract: Reinforced protective thickness directly affect the carrying capacity of concrete structures and steel bond adhesion, the protective may result in different structural strength, stiffness and ductility decreased. Therefore, the protective of concrete reinforced concrete structures directly affect the safety and durability. Through this understanding of electromagnetic induction method, we can further understand the use of electromagnetic induction method detects the location and the protective thickness reinforced scientific and precision.

Keywords: Protective thickness, concrete structure, electromagnetic induction, reinforcing bars

 

1.前言

目前使用的混凝土结构实体钢筋位置测定仪原理基本是采用电磁感应法,在混凝土表面向 发射电磁场,混凝土内部的钢筋产生感应电磁场,由于感应电磁场的强度及空间梯度的变化与钢筋的位置、保护层厚度和直径等有关。因为,通过测量电磁场变化并经过一系列数据处理,便可确定钢筋位置、保护层厚度和估测直径相关参数。

2. 工作原理

首先由信号发射单元向混凝土内部发射脉冲电磁波,当混凝土内部有钢筋存在时,钢筋产生二次感应磁场,并由信号接收单元接收钢筋感应的二次场,由于不同直径和不同保护层厚度的钢筋产生二次场强弱度不同,信号处理单元对接收的信号进行处理,运算后,以数值和指示条的形式显示出来,操作员据此确定钢筋平面位置和保护层厚度。

在交变电磁场中混凝土中的钢筋可感应产生强的二次电磁场。一次场恒定的情况下,二次场的强度是距离(保护层厚度)和钢筋直径的函数,即距离越大,二次场越弱;钢筋直径越大,二次场越强。二次场强度与保护层厚度和钢筋直径为:

        E2=E1d-AφB                  

式中: E1E2—一次场和二次场强度;

           d—保护层厚度;

          φ—钢筋直径;

           A、B—关系系数。

由上式可知,已知一次场情况下,通过仪器的率定,确定AB系数,就可通过测量二次场强度计算出保护层厚度、位置和钢筋直径。

3. 检测技术

3.1基本要求

现场检测时,应对仪器进行清零,清零时探头应远离磁性金属物体即放在空气中进行;并结合设计图纸资料了解钢筋布置情况;应避开钢筋接头和绑丝,钢筋间距应满足检测要求。

当实际混凝土保护层厚度小于钢筋位置测定仪小示值时,应采用在探头下附加垫块的方法进行检测。垫块对钢筋位置测定仪不应产生干扰,表面应光滑平整,其各个方向厚度值偏差不应大于0.1mm。所加垫块厚度在计算时应予扣除。

3.2钢筋位置和保护层厚度测试

当进行钢筋位置检测时,探头慢速匀速的在检测面上移动,等仪器显示屏接收信号强或保护层厚度值小时,此时探头中心线与钢筋轴线应该重合,在相应位置做好标记。也可以在相反的方向重新扫描一次,两次扫描结果相互验证。为了慎重起见,探头应该放在另外方向两条钢筋中间重复上述测量,以核实测量结果,并且准确定向钢筋。 按上述步骤将相邻的其它钢筋逐一标出。

    首先,设定好仪器的钢筋公称直径,沿被测钢筋轴线选择相邻钢筋影响较小的位置,并应避开钢筋接头和绑丝,读取第1次检测的混凝土保护层厚度检测值。在被测的每根钢筋的同一位置应重复检测1次,读取第2次检测的混凝土保护层厚度检测值。其次,对同一处读取的2个保护层厚度值相差大于1mm时,该组检测数据应无效,并查明原因,在该处应重新进行检测,则应该更换检测仪器或采用钻孔、剔凿的方法核实。

:大多数仪器要求钢筋公称直径已知方能准确检测混凝土保护程厚度,此时仪器必须按照钢筋公称直径对应进行设置。

3.3梁柱类测试

对于梁类构件,应对全部纵向受力钢筋的保护层厚度进行检验。梁类构件一般分受力筋、箍筋,而且钢筋间距较密,仪器接收的信号值变化相对较小,其显示的保护层厚度值变化更小,甚至几乎没有变化。因此,如果要进行受力筋保护层和位置测试时,要先定出箍筋位置并予以标注(见图a),然后在间距大的箍筋即非加密区测试受力筋的保护层厚度和位置(见图b)。若探头移动测试面上有箍筋时,会对测试结果产生影响,造成测定值与实际值误差较大。测试箍筋保护层反之。


3.4板类测试

对于板类构件,应抽取不少于6根纵向受力钢筋的保护层厚度进行检验。如单向板,应沿两受力边检测负弯矩钢筋。对双向板,应沿两长边检测负弯矩钢筋;检测位置尽量靠近钢筋根部,并且在两长边中间1/2范围检测;既每根钢筋,应在有代表性的部位测量1点。

板类下排受力钢筋为纵横交错的网状分布结构。检测时,应先用确定出两根钢筋间距,然后沿其方向进行钢筋测试。正确测试方法见图1

测试保护层时,仪器探头不能沿一根钢筋顺其方向移动或者与钢筋成角度扫描测试 ,否侧测试结果误差较大。错误测试方法见图2

对于特殊情况,如果某一测点存在问题或对该点测试结果有疑问,可能是本文第4节的影响,此时可在该测点附件重复测试两点,以检验测试结果。

4 影响测试精度的因素

在混凝土结构中影响测试精度因素较多,如绑扎丝、箍筋、预埋金属件、骨料(含铁量)、钢筋材质、水泥、周围相邻钢筋、参数设置(如钢筋直径)以及测试方法等诸多因素。下面介绍主要的影响因素:

1)保护层厚度的影响

构件本身有磁性;所测部位有除钢筋以外的小磁性物质;选择参数与实际不符;测试方法不正确。因此,现场长时间工作时为了提高精度,应在一段时间后,将探头放在空气中进行清零,以确保数据准确度。

在同等情况下,一般传感器截面尺寸越大,影响越大;在钢筋直径与保护层厚度相同时,间距越小,偏差越大;在钢筋直径与相邻间距相同时,保护层厚度越大,影响越大。

2)钢筋直径影响

在周围磁性物体的影响很小情况下,单根钢筋或间距较大时较准,一般校准时用单根筋在物理实验室下进行。而实际混凝土构件中,钢筋都是以受力筋和箍筋交错或者网状布置的方式设计施工,与物理实验室情况下差距较大,因此难免测量误差较大。

在钢筋间距较大的情况下,这种影响很小,基本可以忽略不计;但是在钢筋间距较小的情况下,测量结果与实际值存在很大的偏差。 因此要选取间距较大的部位,并尽可能在相邻筋中间;准确测量钢筋位置,保护层不能越大;实测值数据误差较小为准,而且要求在现场至少测试3次并一小值作为钢筋直径,后可以局部剔凿确认。

3)钢筋平面位置

钢筋平面位置测试受干扰小,一般情况下均可准确测定。

5 自校、和验证方法

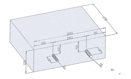
    一般采用对仪器不产生电磁干扰的混凝土、木材、塑料、玻璃、树脂等材料,制作成标准试件,在试件中预埋不同直径钢筋(钢筋未经拉拔),预留不同保护层厚度。如树脂试件尺寸图3参考(单位:mm)。

 

在混凝土结构中,对重要构件的测量数据产生怀疑时,可以采用局部开凿破损,以检验其测定结果,对问题较多工程要组织进行复测;也可以通过构件边缘钢筋位置和保护层相互关系,采用非破损验证。如图4,此构件a1a2为保护层厚度,c1c2为测量面到钢筋中轴线距离,即保护层a1c2减钢筋半径距离相同。

6 小结

以上论述是本人在混凝土结构实体钢筋无损检测技术工作中的一些体会,由于水平有限,不当之处在所难免,希望大家谅解。通过本文的阐述能够起到抛砖引玉的作用,请行业同仁广开言路,共同探讨无损检测技术,使得混凝土结构实体钢筋无损检测方法更趋完善。

 

 

参考文献:

[1] 建筑结构检测技术标准.GB/T50344-2004

[2] 混凝土中钢筋检测技术规程.JGJ/T 152-2008

[3] 混凝土结构工程施工质量验收规范(GB502042002

上一篇:南阳市施耐德电气塑壳断路器
下一篇:6DD1607-0CA0通用功能...