明渠流量计 电话:,黄经理,qq:260956482
一、超声波明渠流量计技术指标及参数
1. 流量范围:10升/秒~10米3/秒 (由配用的量水堰槽的种类、规格确定)
2.
累计流量:8位十进制数,累满后自动回零
3. 流量精度:5% (配用量水堰槽1~3%的不确定,再附加上1~2%的仪表误差)
4.
测距范围:0.4~2米(从探头底部起0.4米内是盲区,0.4~2米内为测距范围)
5. 测距精度:±3mm (在1米量程内的结果)
6.
液位分辩:1毫米
7.
工作环境温度:-20~55℃
(交流供电,且仪表内有附加自伴热时可以:-35~55℃,附加自伴热要在订货时声明)
8.
仪表防护等级:仪表显示部分:IP66(仪表下部的过线孔要堵死);探头部分:IP68
9. 供电电源:
交流供电:220V±10% 6W
(使用仪表自伴热时为26W)
直流供电:12V±2V 160mA
(直流供电时,仪表没有4~20mA输出和继电器动作)
交流供电、直流供电同时存在,仪表使用交流;交流掉电,自动接通直流。

二、仪表的工作原理
1、量水堰槽测流量的原理
明渠内的流量越大,液位越高;流量越小,液位越低(参见图一)。


超声波明渠流量计巴歇尔槽数据表
一、巴歇尔槽水位-流量公式
类
别
序
号
喉道宽度
b(m)
流量公式
Q=Chan
(L/S)
水位范围
h(m)
流量范围
Q(L/S)
临界淹没度%
小
大
小
大
小
型
1
0.025
60.4ha1.55
0.015
0.21
0.09
5.4
0.5
2
0.051
120.7ha1.55
0.015
0.24
0.18
13.2
0.5
3
0.076
177.1ha1.55
0.03
0.33
0.77
32.1
0.5
4
0.152
381.2ha1.54
0.03
0.45
1.50
111.0
0.6
5
0.228
535.4ha1.53
0.03
0.60
2.5
251
0.6
标
准
型
6
0.25
561ha1.513
0.03
0.60
3.0
250
0.6
7
0.30
679ha1.521
0.03
0.75
3.5
400
0.6
8
0.45
1038ha1.537
0.03
0.75
4.5
630
0.6
9
0.60
1403ha1.548
0.05
0.75
12.5
850
0.6
10
0.75
1772ha1.557
0.06
0.75
25.0
1100
0.6
11
0.90
2147ha1.565
0.06
0.75
30.0
1250
0.6
12
1.00
2397ha1.569
0.06
0.80
30.0
1500
0.7
13
1.20
2904ha1.577
0.06
0.80
35.0
2000
0.7
14
1.50
3668ha1.586
0.06
0.80
45.0
2500
0.7
15
1.80
4440ha1.593
0.08
0.80
80.0
3000
0.7
16
2.10
5222ha1.599
0.08
0.80
95.0
3600
0.7
17
2.40
6004ha1.605
0.08
0.80
100.0
4000
0.7
大
型
18
3.05
7463ha1.6
0.09
1.07
160.0
8280
0.8
19
3.66
8859ha1.6
0.09
1.37
190.0
14680
0.8
20
4.57
10960ha1.6
0.09
1.67
230.0
25040
0.8
21
6.10
14450ha1.6
0.09
1.83
310.0
37970
0.8
22
7.62
17940ha1.6
0.09
1.83
380.0
47160
0.8
23
9.14
21440ha1.6
0.09
1.83
460.0
56330
0.8
24
12.19
28430ha1.6
0.09
1.83
600.0
74700
0.8
25
15.24
35410ha1.6
0.09
1.83
750.0
93040
0.8
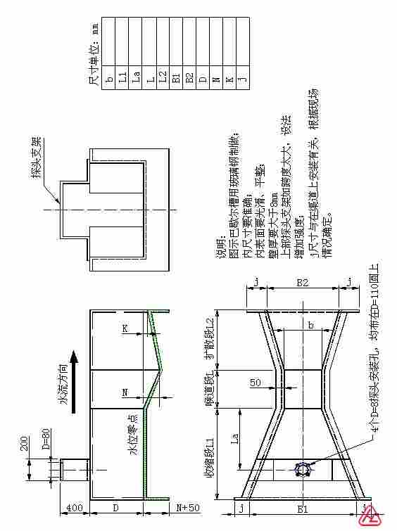
二、巴歇尔槽构造尺寸
单位:米
类别
序号
喉道段
收缩段
扩散段
墙高
b
L
N
B1
L1
La
B2
L2
K
D
小
型
1
0.025
0.076
0.029
0.167
0.356
0.237
0.093
0.203
0.019
0.23
2
0.051
0.114
0.043
0.214
0.406
0.271
0.135
0.254
0.022
0.26
3
0.076
0.152
0.057
0.259
0.457
0.305
0.178
0.305
0.025
0.46
4
0.152
0.305
0.114
0.400
0.610
0.407
0.394
0.610
0.076
0.61
5
0.228
0.305
0.114
0.575
0.864
0.576
0.381
0.457
0.076
0.77
标
准
型
6
0.25
0.60
0.23
0.78
1.325
0.883
0.55
0.92
0.08
0.80
7
0.30
0.60
0.23
0.84
1.350
0.902
0.60
0.92
0.08
0.95
8
0.45
0.60
0.23
1.02
1.425
0.948
0.75
0.92
0.08
0.95
9
0.60
0.60
0.23
1.20
1.500
1.0
0.90
0.92
0.08
0.95
10
0.75
0.60
0.23
1.38
1.575
1.053
1.05
0.92
0.08
0.95
11
0.90
0.60
0.23
1.56
1.650
1.099
1.20
0.92
0.08
0.95
12
1.00
0.60
0.23
1.68
1.705
1.139
1.30
0.92
0.08
1.0
13
1.20
0.60
0.23
1.92
1.800
1.203
1.50
0.92
0.08
1.0
14
1.50
0.60
0.23
2.28
1.95
1.303
1.80
0.92
0.08
1.0
15
1.80
0.60
0.23
2.64
2.10
1.399
2.10
0.92
0.08
1.0
16
2.10
0.60
0.23
3.00
2.25
1.504
2.40
0.92
0.08
1.0
17
2.40
0.60
0.23
3.36
2.40
1.604
2.70
0.92
0.08
1.0
大
型
18
3.05
0.91
0.343
4.76
4.27
1.794
3.68
1.83
0.152
1.22
19
3.66
0.91
0.343
5.61
4.88
1.991
4.47
2.44
0.152
1.52
20
4.57
1.22
0.457
7.62
7.62
2.295
5.59
3.05
0.229
1.83
21
6.10
1.83
0.686
9.14
7.62
2.785
7.32
3.66
0.305
2.13
22
7.62
1.83
0.686
10.67
7.62
3.383
8.94
3.96
0.305
2.13
23
9.14
1.83
0.686
12.31
7.93
3.785
10.57
4.27
0.305
2.13
24
12.19
1.83
0.686
15.48
8.23
4.785
13.82
4.88
0.305
2.13
25
15.24
1.83
0.686
18.53
8.23
5.776
17.27
6.10
0.305
2.13
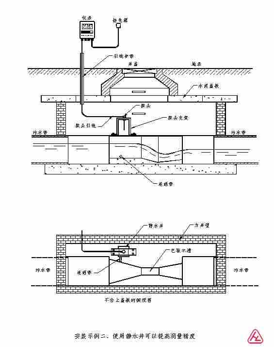
三、巴歇尔槽安装实例
