乙醚液位计选型

发布时间:2019-10-23

乙醚液位计选型

A.基 本 型

测量范围:30015000mm                          

  测量精度:±5.0mm±10mm

工作温度: -40250℃ (ABS PP-R,PVC:-40~80℃)  

 特殊型可达450℃ 

工作压力 :≤25MPa(2.5MPa以上可另行设汁)      

   防腐型≤06MPa

乙醚液位计选型

介质粘度 :≤1st(10-4m2/s)                      

  介质密度:≥450kg/m3

介质密度差:≥ 150kg/m3                        

  排污接口:ZG1/2“(内)

环境振动:频率≤25Hz,振幅≤05mm              

  跟随速度:≤0.08m/s

接液材质:不锈钢(1Cr18Ni9Ti316316L

不锈钢衬聚四氟乙烯(1Cr18Ni9TiPTFE,

乙醚液位计选型PVC塑料(聚氯乙烯)PP-RABS

连接过程 :侧 装 式 HG20592-97 DN25   PN4.0(或用户)

           顶 装 式 HG20592-97 DN100 PN1.6(或用户)

           夹套法兰 HG20592-97 DN15   PN1.6(或用户)

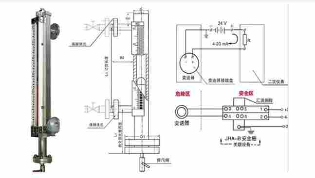
B. 乙醚液位计选型远传装置

输出信号:420mA                          

    负载阻抗:350Ω24VDC时)

供电电源:1830VDC(额定24VDC          

    环境温度:-4080℃

相对湿度:≤90%RH                              

 功    耗:0.5W

本 安 型:ibIICT4                            

  隔 爆 型:dIIBT4

C. 控制报警开关

输出型式:常开常闭开关信号                    

  报警精度:+10mm

环境温度:-4080℃                            

工作寿命:≥105

乙醚液位计选型出线接口:M20´1.5或内螺纹3/4″

乙醚液位计选型

产品主要技术参数

 乙醚液位计选型


 

安装间距

不锈钢

500-5000mm

500-2500mmm

PP塑料

500-4000mm

工作压力

0.61.62.54.0MPa

0.61.62.5MPa

介质密度

0.6g/cm3

0.76g/cm3

连接法兰

不锈钢

法兰20-40 DN20PN4.0

GB/T9119-2000

法兰200-25DN200PN2.5)(GB/T9119-2000

PP塑料

法兰20-10 DN20PN1.0

GB/T9119-2000

法兰200-6 DN200PN0.6)(GB/T9119-2000

主体材料

PP塑料,不锈钢

介质温度

-4080  0150  0300

PP塑料-1060℃)

环境温度

-4070

示值误差

±10mm

介质粘度

0.07Pa.S

上、下限开关输出

1、控制灵敏度:10mm

2、输出接点容量:报警开关AC220V0.5A转换器AC220V5A

3、接点寿命5万次

电远传连续显示

1、精度 ±1.5

2、输出负载:4-20mA 0-500Ω

3、信号输出:DC4-20mA输出 二线制

4、防爆特征:iaCT4本质安全型

型号规格表示示意图

乙醚液位计选型型号标记示例: 
示例1 UHZ-1111 L=2500 ρ =0.6 侧装式 ,ABS(0.6MPa), 基本型 , 安装间距 2500mm, 介质密度 0.6g/cm 3  
示例2 UHZ-2232 □ L=2500 L1=3000 ρ =0.5 顶装式 , 不锈钢 (2.5MPa), 带上、下限开关输出 , 测量范围 2500mm. 安装深度3000mm, 介质密度 0.5g/cm 3  
乙醚液位计选型定货须知 
l
定货时请注明型号规格、测量范围、安装深度、介质密度、介质温度及工作压力等。 
用户如使用JBHG法兰或或其它规格的法兰时可专门提出 , 我公司*人员将协助您选型或为您设计制造特殊产品。 
用户须根据下表自备法兰及密封垫等连接件。用户自备法兰的相关尺寸及密封尺寸见下图及表:

乙醚液位计选型交货、验收服务*

1.  交货前2天通知客户,建议客户安排货物验收人员, 。

2.  货到现场我们将派*人员到货物堆放场地,指导卸货,确保货物完整、安全、正确的卸到堆放场地。

3 .  开箱验收,我们将认真清点货物数量、确保产品型号、数量与合同签定产品型号数量一致,若有疏漏及时采取补救措施,客户验收人员确认装箱单资料的完整性及目测产品外观质量,若及时处理,直到客户满意为止。

 

上一篇:PMAC720A-H电力监控仪表...
下一篇:西门子6SL3700-0MX21...