应急疏散系统中的关键之处有哪些

发布时间:2022-10-31


   应急疏散系统中的疏散标志、疏散指示标志、紧急疏散按钮、消防电梯等都是应急疏散的关键所在,在整个建筑应急疏散系统中起着非常重要的作用。疏散指示标志是紧急疏散的标志,疏散指示标志的设计原则、位置及数量等一般不应过两种,但在一个建筑内疏散指示标志的数量一般不应过三种(即疏散楼梯间不应少于两个)。紧急疏散按钮也是疏散的标志,在某些建筑中有一个特定的疏散标志数量一般不过三个(即疏散楼梯间不应少于三个)。消防电梯是供人们在火灾时紧急疏散用的电梯(必须设置)。此外疏散楼梯间还应设置逃生窗或疏散指示标志。应急疏散指示灯和紧急疏散指示标志是应急疏散系统*重要的标志。。

【关键词】 大型商业综合体;智能消防;物联网;应急疏散系统

0引言

        大型商业综合体是指已建成并投入使用且建筑面积不小于5万m2的集购物、住宿、餐饮、娱乐、展览、交通枢纽等两种或两种以上功能于一体的单体建筑和通过地下连片车库、地下连片商业空间、下沉式广场、连廊等方式连接的多栋商业建筑组合体。发生火灾时,在安全疏散时间内有效地将人员引导疏散至安全区域,是目前大型商业综合体防火工作的一项重要任务。

1.大型商业综合体火灾危险性

1.1消防意识差,管理跟不上

        大型商业综合体内大量的移动运营商,难以统一管理,管理人员、经商人员缺乏消防安全和合作意识,且电气设施多、用电量大,此建筑内相较一般建筑更容易发生火灾。

1.2可燃物品多,火灾荷载大

        大型商业综合体内经营商品种类繁多,装修复杂,绝大多数商品和材料都是木材、塑料、橡胶等高分子材料,属于可燃、易燃物品,一旦发生火灾,燃烧迅速,产生大量的浓烟,释放出CO、HCNsSO2等高温有毒、窒息性气体,易造成人员伤亡。

2.大型商业综合体安全疏散存在主要问题

2.1烟筒效应,火灾蔓延快

        大型商业综合体内发生火灾时,受中庭、楼梯间等烟筒效应影响,火灾蔓延速度较快,燃烧过程中会产生大量高温、有毒烟雾,易导致建筑内疏散人员恐慌,影响人员的安全有序疏散。

2.2功能复杂,疏散距离长

        大型商业综合体的建筑面积大,多种功能叠加,空间分区复杂,疏散交通路线长,发生火灾时所需安全疏散时间长。建筑内不同人员认知能力、正确的决策能力、疏散行动能力和对火灾燃烧的忍耐力都呈现出较强的随机性和不确定性,增加了人员疏散难度。

3.物联网技术

        顾名思义,物联网就是“物物相连的互联网”,使用射频识别技术(RFID),红外传感器,全球定位系统,激光扫描仪,为了实现智能化识别,定位,跟踪,监控和管理,每一个实体对象都以一个不重复的代码连接到Internet,进行信息交换和通信。物联网应用于智能消防系统,能够实现三大特性[1]。

3.1多面感知

        建在不同的传感器网络中的无线传感器节点,可把非电信息转换成电信号,识别当前状态,并向外传输。用于火灾探测的传感器技术有压力、温度、湿度、声音、光传感器等,能够多方采集数据,发现火灾,发送火灾信息。

3.2可靠传递

        蓝牙、GPRS、5G等通信技术的发展提供了保障。其中5G技术容量大,速度快,可以快速传输图像、声音等信息数据,为消防系统提供内容详尽,效果直观的信息支持。无线通信协议不同的模式的结合,使得信息可以在较大的地理区域网络的无线LAN、蓝牙、蜂窝信号、电视广播、卫星通信中连接。

3.3智能作用

        云技术的发展与物联网的规模相辅相成。网络规模的火灾报警系统数据变得臃肿的情况下,云计算可以在几秒钟内,处理数干万甚至数十亿的信息,实现对物体的智能控制和管理。

4.智能消防应急疏散系统

        消防应急安全疏散是指在火灾烟雾、高温等未达到危害人员生命状态之前,将着火建筑中的所有人员通过专门的疏散设施和路线,安全撤离到安全区域。在出现人员伤亡的火灾事故中,人员行为失常和安全疏散时间不足是导致重大人员伤亡事故的一个重要因素,如何在安全疏散时间内有效地将人员引导疏散至安全区域,有效减少人员伤亡,是当前大型商业综合体消防安全的一项重中之重的任务。单一的火灾应急安全疏散路线和疏散方式会因人为、环境变化或机械故障等原因造成疏散失败。安全,准确,快速地逃生是智能消防疏散系统的基本功能。智能消防疏散系统结合物联网技术,一旦发生火灾,充分利用信息和通信手段,通过不同类型的疏散照明、指示标志、通讯器,引导人们避免高温有毒烟雾,实施动态疏散路线规划,适时调整应急疏散方案,确保所有人员做到安全有序快速的消防应急疏散。

4.1智能消防应急疏散因素层次

        利用现代通信技术,进行集中监控,实时监控应急疏散系统中安全出口、疏散楼梯、疏散通道、应急照明、疏散指示标志、应急广播的状态,并从建设和应用环境的实际结构出发,整合制定个性化的火灾应急疏散预案,通过合理的疏散系统设计和规划,有效降低火灾对人员的危害,提高火灾中人员的安全性[2]。在任何时间,保证任何地点的人员可以自由和安全疏散。智能消防应急疏散因素层次结构如图1所示。

 应急疏散系统中的关键之处有哪些

图1智能消防应急疏散因素层次结构图

4.2智能消防应急疏散系统的构成及功能

        采用计算机、通信等技术将楼内的火灾探测设备、消防应急灯、疏散指示标志、防火分隔设备、防烟排烟设备等全部接入统一的管理平台。智能消防应急疏散系统分解为火灾感知(信息采集)、火情处理(数据分析)、火灾救助(逃生路线规划和控制)、后台管理、网络网关五个子系统,主要组件为:主机,通讯路由器,智能消防应急照明和疏散标志灯[3]。智能消防应急疏散系统组成如图2所示。

 应急疏散系统中的关键之处有哪些

图2智能消防应急疏散系统组成

4.3火情探测与信息传输

        外围传感探测设备是以物联网技术为基础的火灾自动报警系统获取信息的主要来源,可以采集温度、湿度、压力、烟雾、火焰、有毒气体等信息。在红外(IR)或射频(RF)频带,大量感测介质的可以选择协议标准。在覆盖区域内可以大量部署传感器节点,每个传感器节点都采用地址编码或者电子产品编码,进入网络后,系统将为每个传感器分配网络地址。当火灾发生时,对环境变化的场景状态,各种传感信息可以是温度、湿度、压力、声音、光强度,这些信息数据转换成电信号,编码地址自动找到设备的网络地址,并根据网络地址传输信息,告知变更状态。通过对单位区域内多个传感器提供的数据资源综合计算分析,消除多传感器信息之间可能存在的冗余和矛盾,使得系统采集到更加准确的现场信息。[4]

4.4信息处理与系统联动

        当传感器向控制器传输信息时,如果传感器节点具有摄像机和其他多媒体设备,则场景图像、音频同步信息可以同步传输,可以通过计算的火情信息(模糊逻辑算法,人工神经网络算法等)辨别确认,识别真假火灾信息,或直接向消防控制台提供详尽、准确报警类型信息、系统状态、故障信息和工作记录。支撑消防控制和数据计算系统,可以存储的同时,接收处理不同传感器的火灾报警信息,并可检索报警点的自然信息,实现声光报警,与消防指挥处进行数据通信,自动联动控制安全出口、应急照明、疏散指示标志、防火分隔设备、防烟排烟设施等,寻呼提醒相关人员。

        传感器节点众多,可以系统采集现场的温度、湿度、压力、光强度、一氧化碳等气体成分、烟雾浓度等,通过对火场范围、火势蔓延速度和方向、烟的成分和浓度、空气中温度的计算分析,借助GIS和GPS系统,直观绘制出现场实际情况。SMS报警分析(集成到智能网关带GSM/5G公司的无线模块或外部SMS调制解调器)由火灾感测信息和火灾感知的数据的子系统进行短信和语音提示报警。火情报警处理算法系统和火势分析处理算法系统会自动分析规划逃生路线,通过智能引导系统引导人员逃生。

4.5智能消防应急疏散系统维护功能

        应急照明和疏散指示标志都有不重复的地址电子编码,系统24h不间断地对灯具进行巡检,定期对蓄电池容量和充放电功能进行检测,检测其开路、短路、故障等状况,解决传统消防应急灯日常检查维护难题[5]。

4.6消防联动动态疏散功能

        利用频闪、语音、连续光带,动态调整疏散指引方向,一定程度上能够减少火灾时受灾人员的心理恐慌,确保系统在火灾发生时,能够动态“安全引导”人员避幵危险区域,快速疏散。与传统的“近引导"静态单一方式比较,更能实现火灾现场人员[6]。智能消防应急疏散系统结构如图3所示。

 应急疏散系统中的关键之处有哪些

图3智能消防应急疏散系统结构图

        火灾发生时,智能消防应急疏散系统主机通过标准串行端口,接收来自火灾报警系统各传感节点的联动信息,确定火灾危险区域的位置,通过计算分析,选择相应疏散路线和应急预案,实时解析终端设备釆集的传感节点信息,改变相关双向可调标志灯和语音灯,调整应急照明灯的工作状态,语音和频闪动作增强烟雰的穿透力,实现大型商业综合体人员的安全疏散[7]。

5.安科瑞消防应急照明和疏散指示系统产品选型

5.1系统简介

        消防应急照明和疏散指示系统由控制器(主机)、集中电源(供电),分配电装置(分机)和灯具(疏散指示灯、应急照明灯)等几部分组成。该系统配合火灾报警控制器的使用,在危急时刻,能够快速针对风向、就近出口、火灾的走势、人群密度做出分析,给出安全的疏散路径指示,智能打开消防应急标志灯的指示方向以及应急照明灯,帮助建筑内的人群实时地选择逃生路线,指引安全逃生方向,保障群众的人身安全,为各商家担心的安全问题解决了后顾之忧。

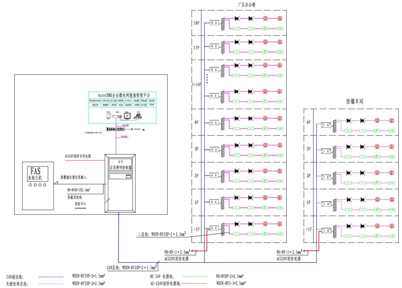
5.2系统结构

 应急疏散系统中的关键之处有哪些

 

5.3系统功能

5.3.1系统运行主界面

        包含工具栏、平面展示、图层列表、状态栏,可以直观的查看监控设备的运行状态,并根据状态栏的现实内容直接切换至故障具体位置。

 应急疏散系统中的关键之处有哪些

 

 5.3.2 灯具配置界面

        可以查看所有灯具状态与数量。

 应急疏散系统中的关键之处有哪些

 

5.3.3信息界面

        可查看历史操作、故障、事件信息、可按日期进行查询。

 应急疏散系统中的关键之处有哪些

 

5.3.4权限管理界面

        主要由应急启动、应急停止与手动火警组成,应急启动与停止用来测试设备应急功能是否正常,手动火警测试再具体着火点下系统的启动情况。

 应急疏散系统中的关键之处有哪些

5.4消防应急照明和疏散指示系统产品选型

5.4.1应急照明控制器选型

 应急疏散系统中的关键之处有哪些

 应急疏散系统中的关键之处有哪些

5.4.2应急照明集中电源

 应急疏散系统中的关键之处有哪些

5.4.3(大型商场)A型集中电源集中控制灯具选型

 应急疏散系统中的关键之处有哪些

 应急疏散系统中的关键之处有哪些

6.结语

        智能消防应急疏散系统能够有机地结合电气火灾报警系统和火灾自动报警系统,更加的快速、准确地发现火灾,提高火灾报警的准确性,降低误报率。智能消防应急疏散系统不仅解决了消防应急灯具的日常维护问题,并接收火灾报警消防联动信息,自动计算逃生路线,形成动态有效的疏散方案,消除火灾发生时大型商业综合体内疏散指示盲区,提高了疏散的安全系数。


 

上一篇:电热鼓风干燥箱85L高配 型号K...
下一篇:毕节厂房承重检测中心-毕节排查中...