联系人:黄经理
电 话:
手 机:
QQ:419966301



原理:
清水流量计测量原理是基于法拉第电磁感应定律。流量计的测量管是一内衬绝缘材料非导磁合金短管。两只电极沿管径方向穿通壁固定在测量管上。其电极头与衬里内表面基本齐平。励磁线圈由双向方波脉冲劢磁时,将在与测量管轴线垂直的方向上产生一磁通量密度为B的工作磁场。此时,如果具有一定电导率的液体流经测量管,将切割磁力线感应出电动势E。电动势E正比于磁通量密度B,测量管内径d与平均流速V 的乘积。电动势E(流量信号)由电极检出并通过电缆送至转换器。转换器将流量信号放大处理后,可显示流体流量,并能输出脉冲,摸拟电流等信号,用于流量的控制和调节。
清水流量计特点:
1.仪表结构简单、可靠,无可动部件,工作寿命长。
2.无截流阻流部件,不存在压力损失和流体堵塞现象。
3.无机械惯性,响应快速,稳定性好,可应用于自动检测、调节和程控系统。
4.具有管道式、插入式便于安装。
5.具备一体型和分体型便于选择。
6.测量精度不受被测介质的种类及其温度、粘度、密度、压力等物理量参数的影响。
7.采用聚四氟乙烯或橡胶材质衬里和Hc、Hb、316L、Ti等电极材料的不同组合可适应不同介质的需要。
8.采用EEPROM存贮器,测量运算数据存贮保护安全可靠。
9.多种信号传输方式和电源供电方式。
10.高清晰度LCD背光显示。

清水流量计技术参数:
项目 | 管道式 | 插入式 | |
公称痛径 | DN15~DN2600 | ≥DN200 | |
介质电导率 | ≥5μS/cm | ≥5μS/cm | |
基本误差 | 0.5级,1.0级(随口径区分) | ±2.5%F.S | |
流速范围 | 0.5~10m/s 1~5m/s | 0.5~10m/s | |
环境温度 | 传感器-40℃~80℃,转换器-15℃~50℃ | -40℃~+55℃ | |
介质温度 | ≤120℃(聚四氟乙烯或F46)被测介质大于120℃时,订货时加以说明 | -20℃~+55℃ | |
连接方式 | GB/T9119-2000标准法兰 | GB/T9119-2000标准法兰螺纹连接,球阀规格:DN50 | |
工作压力 | DN15~DN80:4.0Mpa, DN100-DN150:1.6Mpa,≥ND400:1.0Mpa,特殊规格订货请注明 | 0.25Mpa~4.0Mpa特殊规格订货时请注明 | |
输出信号 | 电流输出:4~20mADC(负载电阻0~500Ω),频率输出:0~1kHZ(负载电阻≥3000Ω),电压输出:0~5VDC | ||
消耗功率 | ≤15W | ≤15W | |
供电电源 | 交流:~220V,50Hz:直流:+24V | 交流:~220V,50Hz:直流:+24V | |
衬里材料 | 聚四氟乙烯;橡胶;F46;聚氟合乙烯(FS);聚氨酯橡胶 | 无 | |
电极材料 | 0Cr18Ni12Mo2Ti,哈氏合金B,哈氏合金C,钽,钛,不锈钢涂覆碳化钨 | ||
通信接口 | RS-232;RS-485;HART | RS-232;RS-485;HART | |
安装形式 | 一体式;分体式 | 一体式;分体式 | |
励磁方式 | 低频脉冲直流励磁 | 低频脉冲直流励磁 | |
电气接口 | M20×1.5螺纹 | M20×1.5螺纹 | |
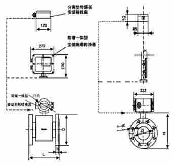
清水流量计 结构图: 管道式 插入式


清水流量计应用:
1.水,浓酸、碱等强腐蚀性介质
2.卫生类介质
3.水、污水、弱磨损性的泥浆矿浆
4.中性强磨损性的泥浆、矿浆、煤浆