变电站接地网测试技术分享与交流

发布时间:2019-11-25

变电站接地是指将电气设备的某些部位、电流系统的某点与大地相连,提供故障电流及雷电流的泄流通道,提供零电位参考点。变电站接地网即指将多个接地体用接地干线连接成网络,具有接地可靠,接地电阻小的特点,其主要目的是为了设备安全运行和人员的安全,接地网主要分为工作接地、保护(安全)接地、屏蔽接地和防雷。


接地网一旦出现故障,不仅对设备运行造成影响,也可能造成人员受伤,因而对接地网特性参数进行定期测试是一项非常重要的测试工作。


   接地网特性参数测试包含:接地电阻测试,跨步电压测试和接地电阻率测试。不同变电站的接地网大小形状不一,对于大型接地网如果测试电流达不到,将无法准确测出接地电阻的大小,因而用户在测试仪器选择上必须慎重参考。


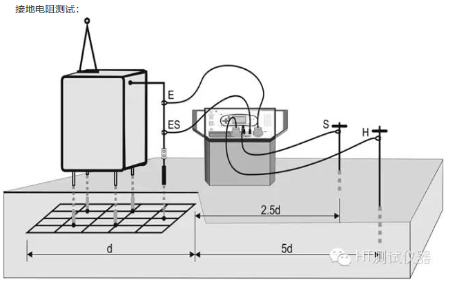
   HT2055是HT生产的大型地网接地电阻与跨步电压测试仪,其接地电阻测试电流*可达7.5A,跨步电压测试电流更高达50A,大大提高了大型接地网特性参数测试的准确性和可靠性。

除此之外,HT2055还提供接地电阻率测试,为改进接地网的特性提供理论依据,一次现场便可完成所有测试,为用户节约时间和人员成本。

HT的销售工程师们走访了多个变电站,并累计了越来越多的现场经验,HT2055测试方便,数据*可靠等特点获得越来越多变电站技术人员的认可!附上现场测试图:

欢迎各位同行分享交流变电站接地网测试

上一篇:福州污水井管堵水下拆除潜水员施...
下一篇:欢迎——内蒙古呼和浩特土工格栅—...