摘要:介绍安科瑞智能照明监控系统,采用智能控制模块控制照明回路的通断。系统采用KNX总线进行组网的方式,并远传至后台,通过Acrel-iLightControl型智能照明监控系统实现灯光的智能控制。
关键词:京东亚洲1号福州长乐物流园;楼层;Acrel-iLightControl;安科瑞智能照明控制系统
0 概述
京东亚洲1号福州长乐物流园位于临空经济区,用地159亩,投资6.5亿元,主要建设三栋单层中小件库以及配套用房,建成后将促进物流产业发展,发挥临空经济区以产兴城的作用。根据项目智能化管理需求,需要对其中A-1、A2、A3三栋中小件库照明回路智能化控制。
随着科技的发展和社会的不断进步,人们对生活品质要求越来越高,传统照明方式虽然结构简单、直观,但控制方式单一,只能进行开或关,整个照明系统只能采用人工值班方式,而安科瑞智能照明系统操作方便,能随时、随地、随意控制灯具的亮度和发光时间,节能节电,在不同时段或天气下自动启动不同亮度,模式可配置,可以通过预设情景模式控制灯具,而传统的照明系统无法满足这些要求,于是为京东亚洲1号福州长乐物流园工程设计一套安科瑞智能照明监控系统,该项目需配置智能照明监控模块,控制公共照明区域的通断,并同时设置多场景照明回路。
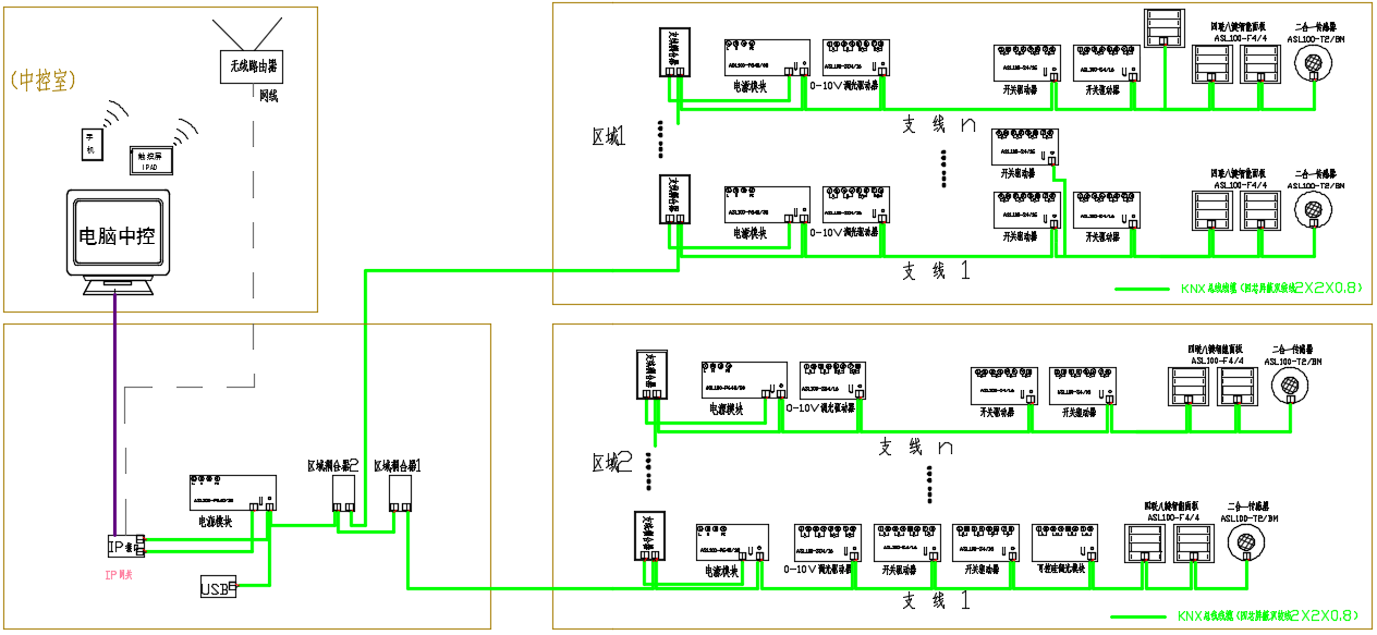
1 系统结构描述
本监控系统主要实现京东亚洲1号福州长乐物流园的楼层公共区域的照明回路的远程控制。该系统计有12台ASL100-S12/16驱动器、12台ASL100-S8/16驱动器等组成,现场所有智能照明控制模块采用混合串并联的方式接在一起,采用KNX总线通讯,从而完成整个物流园的智能照明控制网络,*终实现值班室机的通讯,完成后台和分控的数据连接。
本监控系统采用分层分布式结构,即站控层,通讯层与间隔层;
如图(1)所示:

图(1)网络拓扑图
间隔设备层主要为:多功能网络电力仪表。这些装置分别对应相应的一次设备安装在电气柜内,这些装置均通过现场KNX总线组网通讯,实现数据现场采集。
网络通讯层主要为:智能照明网关,其主要功能为把分散在现场采集装置集中控制,同时远传至站控层,完成现场层和站控层之间的数据交互。
站控管理层:设有高性能工业计算机、显示器、UPS电源、打印机等设备。监控系统安装在计算机上,集中采集显示现场设备运行状况,以人机交互的形式显示给用户。
以上开关模块均采用KNX总线传输,一般都采用4根连线,接线简单方便,*传输距离为1.2km。
2 安科瑞智能照明监控系统主要功能
2.1 定时控制
通过时钟管理器,实现整个系统的有关区域照明的定时和自动管理功能,实现公共通道、景观照明、泛光照明、车库照明定时控制。如百叶窗定时升降、集中供热定时调节、节假日照明定时关闭、定时通知等。
2.2场景控制
智能照明控制系统根据各个部门的需求,设定不同种类的场景模式,进行各种照明灯光的组合,达到美化工作环境的效果;结合人体感应传感器,当人员离开时,关闭所有该会议室照明。
2.3人体感应控制
在办公走道和楼梯内,布置人体感应传感器。在有人员进入区域时,自动开打开照明。当人员离开后,延迟一段时间再关闭。若延迟时间内有人进入,则重新进入打开模式,以达到节能目的。并且可以设置白天有效,晚上无效,根据需求设定。
2.4恒照度控制
在室内办公区域内,布置照度传感器,可以根据外界自然光源,自动调节室内照明的灯光亮度和开灯数量;既充分利用了自然光,又可以为室内人员创造一个舒适的工作环境。
2.5实时监控
中央控制室,配置一台中控主机,所有照明控制设备,通过KNX网关,接入监控系统,操作管理人员,可以通过中控电脑,实时监视总线、区域、楼层、楼栋等照明状态,并可根据需求进行控制调整。系统绘图工具支持向量图和多层页面,图形页面缩放方便,切换简单,支持DXF、WMF、BMP、JPG、ICON等图形对象的嵌入、支持二维、三维图元的绘制,增加可视化的空间效果。
2.6报警处理
系统提供了警报处理能力,用户可采用编程来完成不同的任务,当某种警报条件出现时应做什么,可由用户自行确定。
2.7事件通报
系统提供了事件通报功能,支持邮件通报、文本输出以及事件驱动打印,可按照用户预先设置的条件,触发事件通报功能。
2.8日照时间计算
按照用户当前所在的时区,计算日照时间,作为定时控制的时间基准。
2.9数据交换
系统可以直接使用ETS2和ETS3项目的数据,方便的实现软件升级和替代;还可接受以CVS文件格式保存的模块及系统数据;系统支持OPC服务,可以与其他建筑智能化系统进行数据交换。
3.0系统联动
系统可以输入模块,接受其他系统或工作人员的强切信号;实现安防系统、广播系统、会议系统,甚至消防系统的联动控制,控制相应灯具点亮和设备启停。
3 结束语
随着社会的发展及电力的广泛应用,安科瑞智能照明监控系统已成为各地重点工程项目、标志性建筑/大型公共设施等大面积多用户的必然选择,本文介绍的Acrel-iLightControl智能照明监控系统在京东亚洲1号福州长乐物流园的应用,在公共走廊、仓库等区域布置触摸屏、照度感应器、智能控制面板,照明柜/箱内安装控制模块、干接点模块等,采用与KNX兼容的Acrel-Bus总线组网方式,通过IP网关接入安科瑞智能照明控制系统,实现定时控制、高峰全开、亮度调节等各种场景控制,使照明系统按照预先设定的各种模式工作,改善空间光色、立体感、色饱和度,营造舒适宜人灯光效果,节能减耗、有利于人们的身心健康,提高工作效率、提高管理水平。
参考标准:
ISO/IEC11801《国际综合布线标准》
GB/50198《监控系统工程技术规范》
GB50052-2009《供配电系统设计规范》
GB50054-2011《低压配电设计规范》
IEC 61587《电子设备机械结构系列》
GB 50034-2013《建筑照明设计标准》
JGJ 16-2008《民用建筑电气设计规范》
GB 50057-2010《建筑物防雷设计规范》
GBZ 20965-2007 《控制网络hbes技术规范 住宅和楼宇控制系统》
IEC2554《高频干扰电压测试》
IEC255424《静电放电试验》
IEC255-224《快速瞬变干扰试验》